Connect With Us
Home
About Us
Services
Gallery
Projects
HMO
MASTER PLANNING AND DEVELOPMENT
NEW BUILD DESIGNS
EXTENSIONS AND INTERNAL ALTERATIONS
COMMERCIAL DEVELOPMENT
LOFT CONVERSION
MEASURED BUILDING SURVEY
CHANGE OF USE
PLANNING DRAWINGS
BUILDING REGULATION DRAWINGS
Contact Us
Home
About Us
Services
Gallery
Projects
HMO
MASTER PLANNING AND DEVELOPMENT
NEW BUILD DESIGNS
EXTENSIONS AND INTERNAL ALTERATIONS
COMMERCIAL DEVELOPMENT
LOFT CONVERSION
MEASURED BUILDING SURVEY
CHANGE OF USE
PLANNING DRAWINGS
BUILDING REGULATION DRAWINGS
Get In Touch
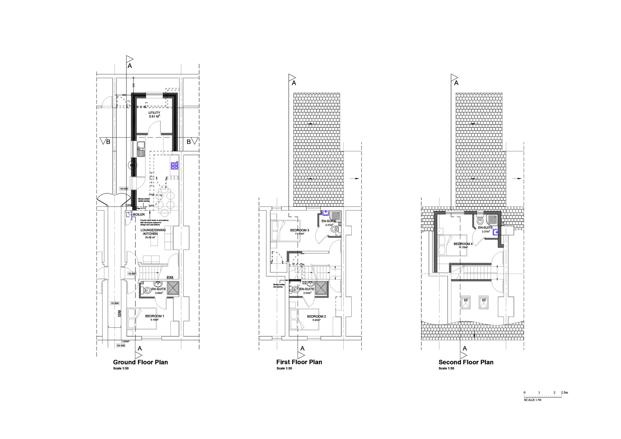
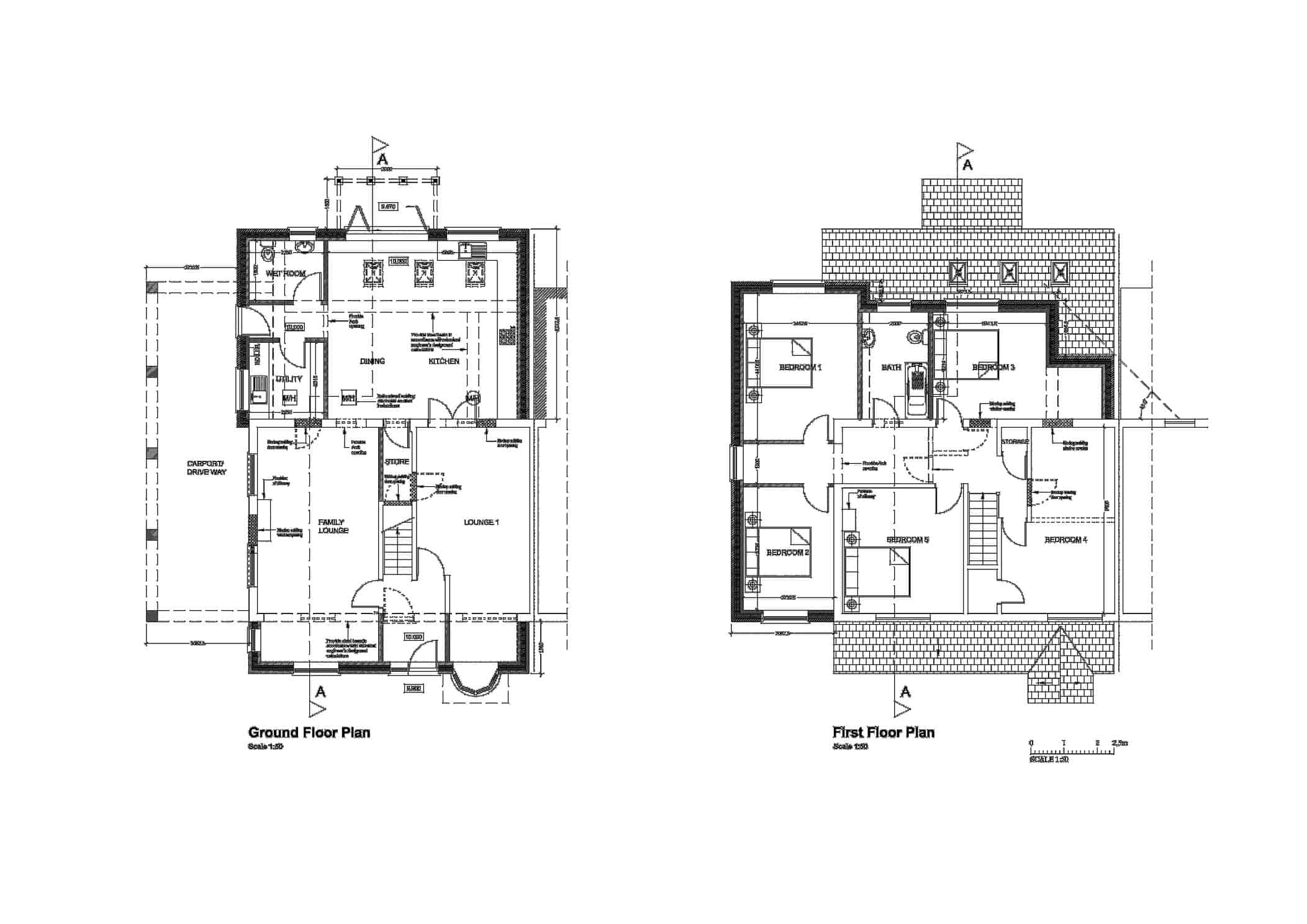
EXTENSIONS AND INTERNAL ALTERATIONS
Home
/
EXTENSIONS AND INTERNAL ALTERATIONS
Project
01
Project
02